Poseł Robert Telus wystąpił o kontrolę NIK-u w sprawie sprzedaży gruntów przy ul.Przemysłowej
Nasza praca nie okazała się "dobrą, nikomu nie potrzebną robotą". Zgromadzone przez portal Opoczno.info materiały dotyczące sprzedaży terenów inwestycyjnych przy ul. Przemysłowej, obok materiałów zgromadzonych przez Posła na Sejm RP, Roberta Telusa, a także ostatnie roszczenia byłych właścicieli w/w gruntów posłużyły za podstawę złożenia do Najwyższej Izby Kontroli wniosku o wszczęcie kontroli dotyczącej zbadania pod względem legalności, gospodarności i rzetelności procedury sprzedaży gruntów komunalnych przez Burmistrza Miasta Opoczno.
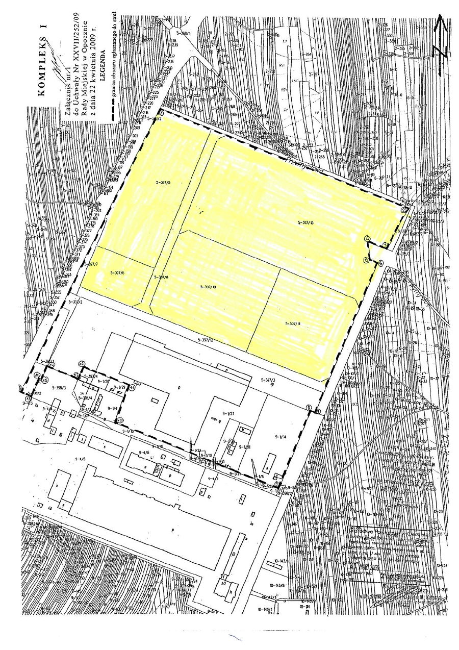
"Jako budzące największe wątpliwości należy wskazać transakcje sprzedaży gruntów położonych przy ul. Przemysłowej w Opocznie, których dokonano :
- 22 sierpnia 2000 r. na rzecz „Opoczno” S.A.;
- 19 maja 2005 r. na rzecz „Quimicer Polska” Sp. z o. o.;
- 5 października 2006 r. na rzecz „Kilion International S.L.”.
Kryterium legalności mogło zostać naruszone poprzez brak respektowania zapisów art. 34 ustawy z dnia 21 sierpnia 1997 r. o gospodarce nieruchomościam, zgodnie z którymi w przypadku zbywania nieruchomości osobom fizycznym i prawnym pierwszeństwo w ich nabyciu przysługuje osobom, które były poprzednimi właścicielami zbywanej nieruchomości pozbawionymi prawa własności tej nieruchomości. Istnieje grupa co najmniej kilkudziesięciu osób które w latach siedemdziesiątych zostały wywłaszczone z terenów sprzedanych później prywatnym podmiotom. Moim zdaniem roszczenia tych osób są wciąż zasadne."-powiedział poseł Robert Telus
Od czerwca Opoczno.info - Niezależny Portal Miejski badał sprawę sprzedaży terenów inwestycyjnych. Pisaliśmy o wszystkim w artykułach:
Gdzie są ci inwestorzy?
Tereny inwestycyjne – czy Gmina ma coś do ukrycia?
Grunty inwestycyjne – po raz trzeci
Zgromadzone przez nas informacje przekazane zostały wraz z wnioskiem do Najwyższej Izby Kontroli.
- Szczegóły
- Mateusz
- Kategoria: Gospodarka i finanse
- Opublikowano: - Lis 14, 2013
- Odsłony: 2654


